Przedmiotem pracy inżynierskiej jest kompleks rekreacyjno-mieszkaniowy dla osób starszych i w średnim wieku zlokalizowanym przy ul. Guźca na Ursynowie, obszar Natolin Zach. – Moczydłowska Wschód, w Warszawie. Działka mieści się pomiędzy ul. Guźca a ul. Stryjeńskich, w kierunku zachodnim na przedłużeniu ul. Przy Bażantarni.
Głównym założeniem projektu jest stworzenie miejsca odpoczynku oraz rehabilitacji
zarówno dla osób młodych dotkniętych różnymi schorzeniami jak i w szczególności dla osób starszych i w średnim wieku. Obecnie możemy zauważyć, że ilość osób starszych
w polskim społeczeństwie rośnie. Jesteśmy często sprawni przez bardzo długi czas, ale później będąc w podeszłym wieku potrzebujemy większej opieki i troski. Opieka nad osobami starszymi oraz niepełnosprawnymi wymaga dużego zaangażowania oraz poświęcenia
od najbliższej rodziny, np. poprzez zrezygnowanie z pracy, czy dodatkowe urlopy, co za tym idzie mniejsze zarobki oraz mniejszy rozwój osobisty. Stałe opiekowanie się takimi osobami jest dużym obciążeniem psychicznym oraz fizycznym członków rodziny, co może powodować pogorszenie się relacji rodzinnych. Dlatego stworzenie kompleksu rekreacyjno-mieszkaniowego pozwoli na profesjonalną i dogodną opiekę nad osobami starszymi i niepełnosprawnymi oraz będzie to bardzo dobrym rozwiązaniem dla najbliższej rodziny, ponieważ będą pewni o tym, że ich bliski dostanie jak najlepszą opiekę.
Lokalizacja projektowanego kompleksu pozwoli na urozmaicenie funkcji zainwestowania na Ursynowie, dzielnicy stosunkowo młodej, ale potrzebującej moim zdaniem ośrodków o wysokim poziomie lecznictwa i rehabilitacji. Kompleks mieści się na pograniczu zabudowy mieszkaniowej jednorodzinnej i wielorodzinnej. Teren ten znajduje się w granicach Warszawskiego Obszaru Chronionego Krajobrazu, co skłania mnie do zastosowania rozwiązań krajobrazowych, ekologicznych oraz energooszczędnych, pasywnych.
Pozytywnymi aspektami zastosowania powyższych rozwiązań są korzyści takie
jak: komfort użytkowania budynków poprzez wysoką jakość powietrza wentylowanego oraz komfort cieplny i akustyczny, przyjazne otoczenie i środowisko.
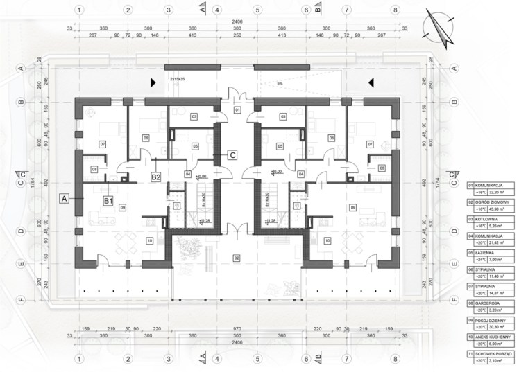
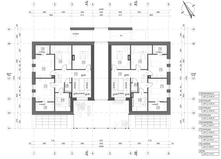
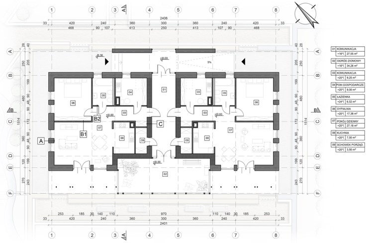
Kompleks rekreacyjno-mieszkaniowy obejmuje budynek usługowy o funkcji medycznej, rehabilitacyjnej i rekreacyjnej, cztery budynki mieszkalne oraz krajobrazowy plan zagospodarowania terenu.
Projekt: 2016r.





































