


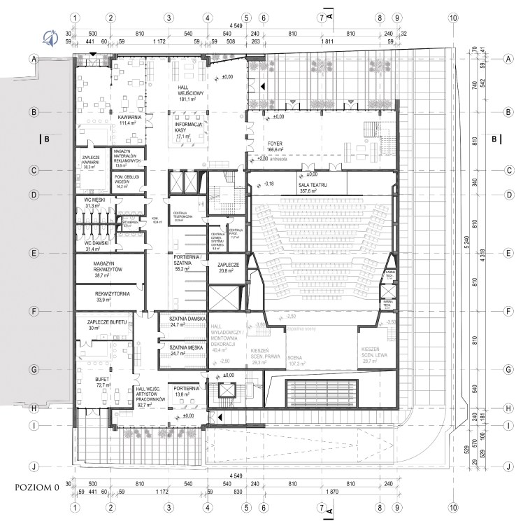
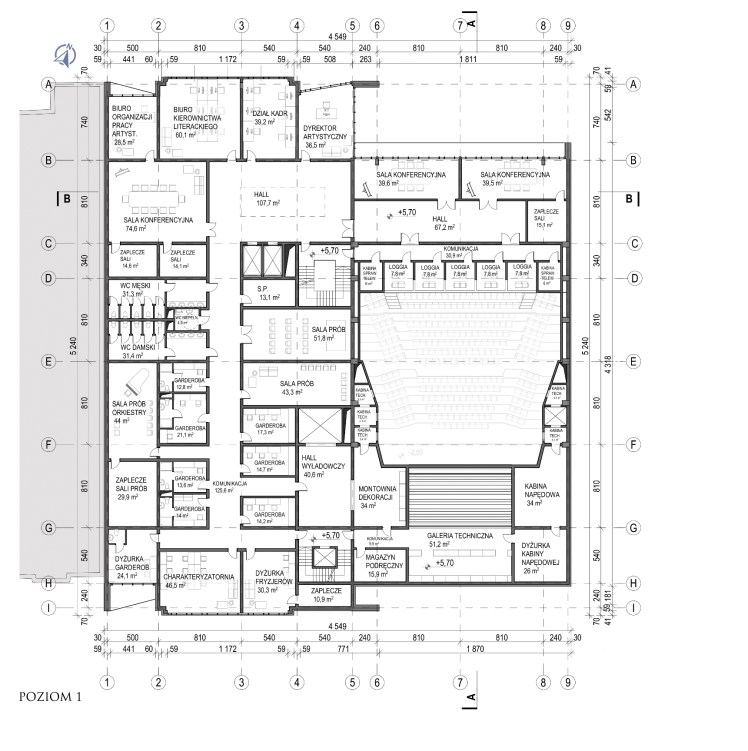
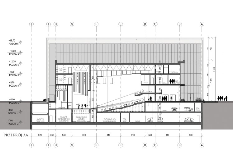
Projekt Teatru jest zlokalizowany przy ulicy Foksal, w Warszawie. Bryła budynku została dostosowana wysokościami do okolicznych budynków. Cofnięcie kubatury sali teatru pozwoliło na uzyskanie placu wejściowego. Bryła Sali teatralnej wraz z towarzyszącymi pomieszczeniami została „wciśnięta w ziemię” o jedną kondygnację. Elewacja od ulicy Foksal ma charakter otwarty, uzyskany za pomocą dużej powierzchni przeszklonej. Wysokości kondygnacji zostały dostosowane do kamienicy obok. Materiały użyte na elewacjach: beton architektoniczny o różnym pigmencie, szkło czyste oraz mleczne. W Sali teatralnej została zaprojektowana widownia posiadająca 394 miejsc siedzących, na trzech poziomach – „parter”, „balkon” oraz „loggie”.








ZDJĘCIA MAKIETY


