Hotel 3*** – Warszawa

Projekt hotelu 3-gwiazdkowego, w zabudowie miejskiej, jest zlokalizowany na rogu ul. Leszczyńskiej i ul.Topiel, w Śródmieściu, w Warszawie.

 

Główna wizualizacja

 

Dokumentacja fotograficzna stanu istniejącego

 

Analiza urbanistyczna terenu

 

Sytuacja

 

Idea projektowa

 

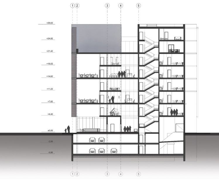
Przekrój 3D

 

Przekrój 3D

 

Poziom 0

 

Poziom 1,3,5 – Kondygnacja powtarzalna

 

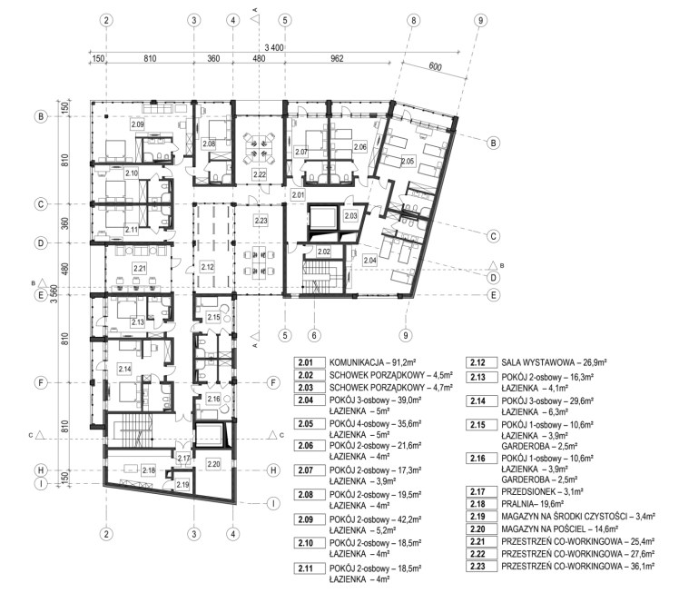
Poziom 2,4 – kondygnacja powtarzalna

 

Poziom 6

 

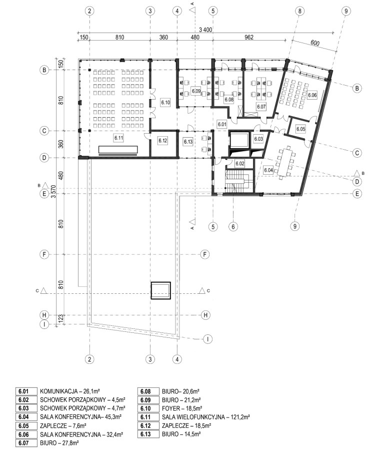
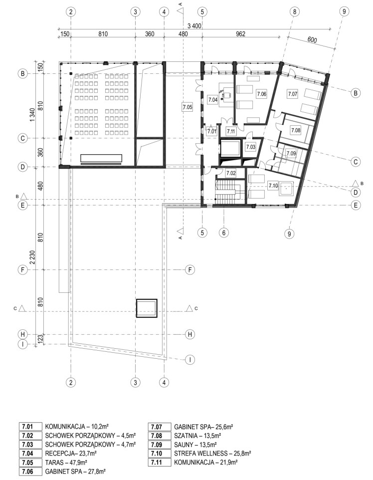
Poziom 7

 

Poziom -1 – garaż podziemny

 

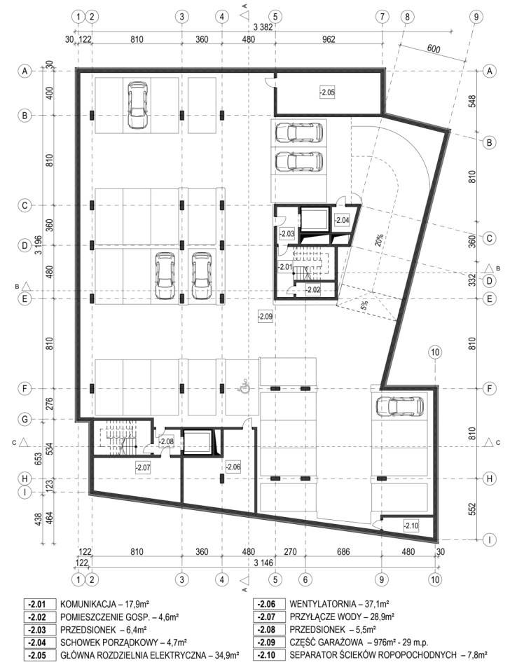
Poziom -2 – garaż podziemny

 

Jednostka mieszkalna – apartament z widokiem na Park Kazimierzowski

 

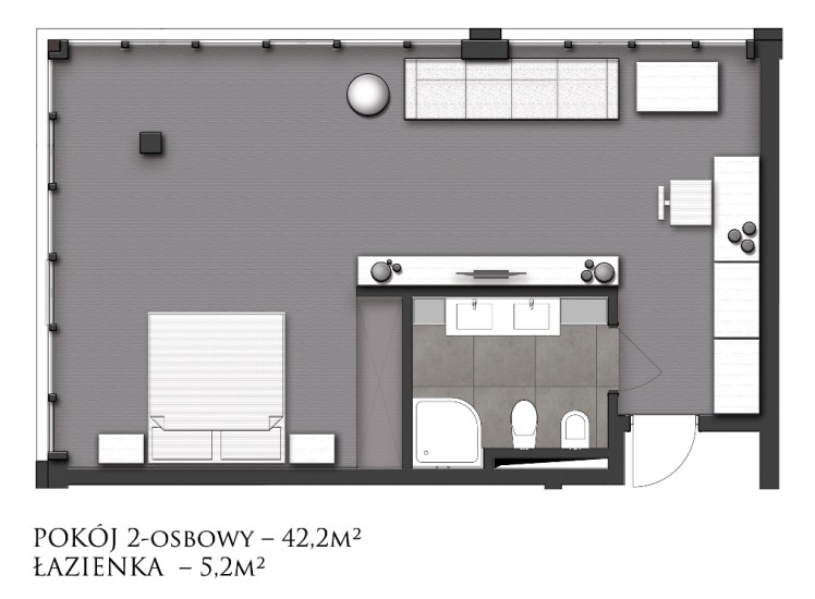
Jednostka mieszkalna – pokój 2-osobowy standardowy

 

Przekrój 3D – rozkład funkcji o charakterze rekreacyjnym

 

Detal architektoniczny

 

Przekrój AA

 

Przekrój BB

 

Przekrój CC

 

Elewacja Północna

 

Elewacja Zachodnia

Dodaj komentarz