Główna idea projektu opiera się na sposobie powielania bądź przekazywania informacji.
Najbardziej pierwotną formą przekazywania informacji jest obraz (np. prehistoryczne rysunki w jaskiniach). Z biegiem historii wykształciło się pismo, co pozwoliło na wykonywanie książek i przekazywanie informacji w sposób trwały. W latach 50. XIX w pojawiło się pierwsze nagranie audio, a niewiele lat później pierwszy film.
Powyższą zasadę można zaprezentować za pomocą idei fraktali, które powielają się w sposób modułowy.
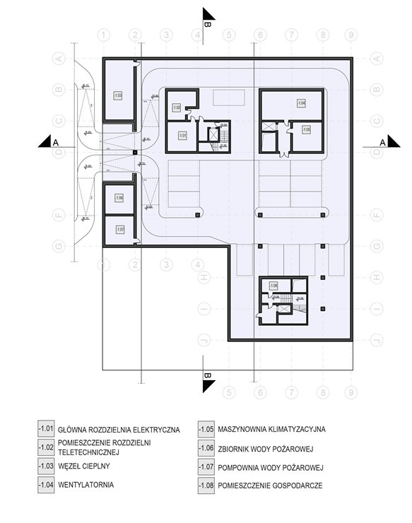
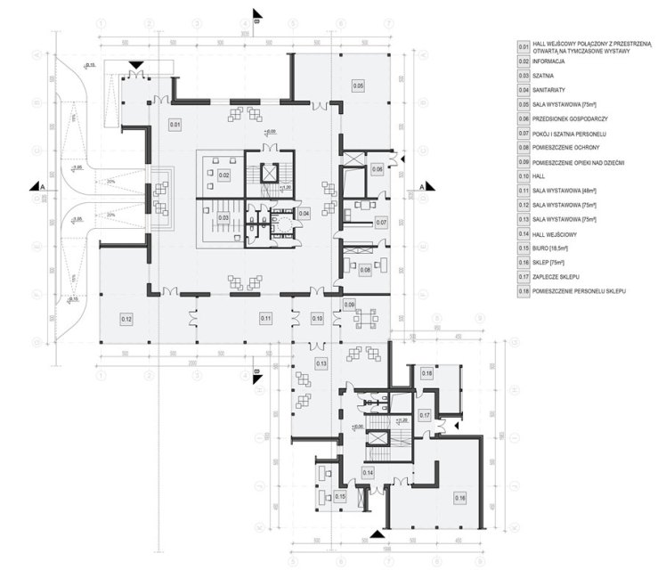
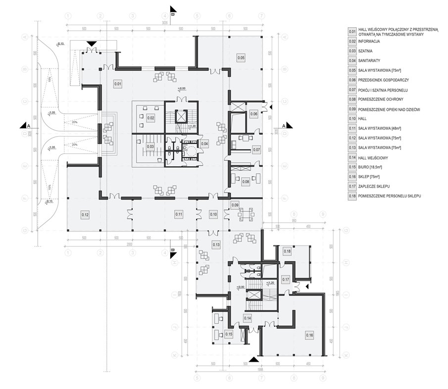
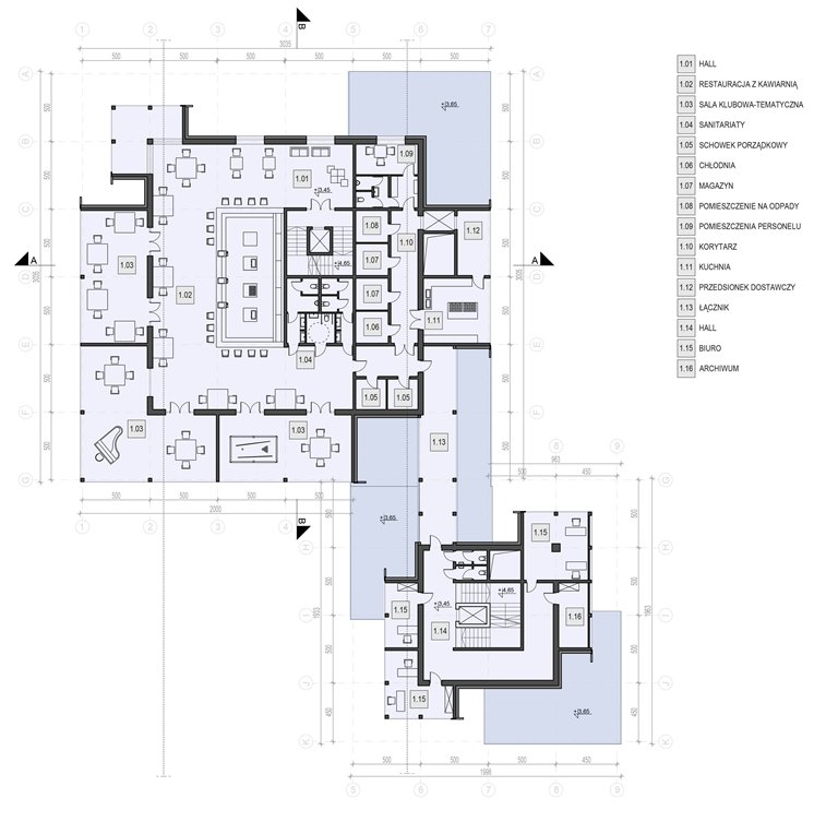
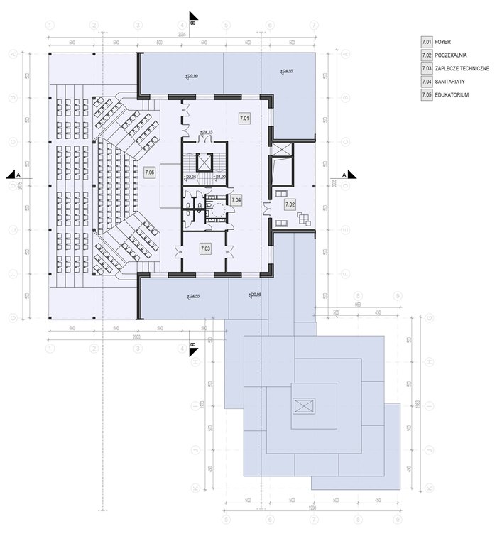
W wyniku kształtowania formy, projekt składa się z dwóch brył. Pierwsza z nich to główna cześć Mediateki, której podział wynikał z rozwoju nośnika informacji w historii, a druga bryła to część administracyjna.
Mediateka jest budynkiem trzonowo-powłokowym składającym się z dwóch kubatur połączonych ze sobą łącznikiem. W głównej części mediateki rozstaw konstrukcji w wewnętrznym trzonie wynosi 10x10m, tak aby zapewnić możliwość wykonania tunelu przebiegającego pod działką. Mniejsza kubatura mediateki posiada rozstaw 5x5m konstrukcji w wewnętrznym trzonie oraz zaprojektowane są tam wsporniki o wysięgu 2,5m.
Konstrukcja budynku jest kształtowana modułowo – słupy konstrukcyjne w rozstawie 5x5m lub 10x10m. Strop zaprojektowany jest w technologii żelbetowe, o układzie rusztowo belkowym o grubości 50cm, który pozwolił na uzyskanie wsporników o zasięgu 5m w głównej części mediateki.
Lokalizacja: ul. Ks. Ignacego Kłopotowskiego 22, Warszawa
Projekt: 2016r.



























