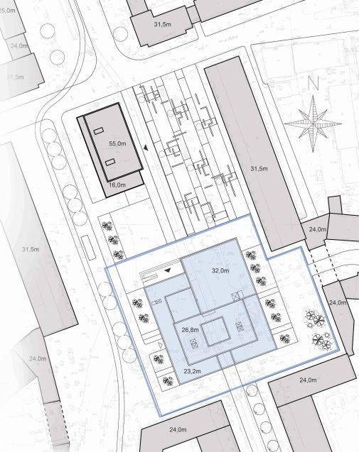
LOKALIZACJA: Pl. Konstytucji 1, Warszawa
IDEA:
Koncepcja urbanistyczna placu opiera się o zamknięcia widokowe. Projektowany obiekt został nanizany na oś ulicy Marszałkowskiej, tworząc jednocześnie zamknięcie widokowe tej osi. Plac konstytucji w ramach projektu został przeprojektowany. Komunikacja kołowa została ograniczona tylko do ul. Koszykowej w północnej części placu do ul. Waryńskiego.
Wejście główne do budynku znajduje się od północnej elewacji, a wjazd do garażu podziemnego od zachodniej elewacji. Droga dostawcza do budynków jest zlokalizowana na zachodniej części placu.
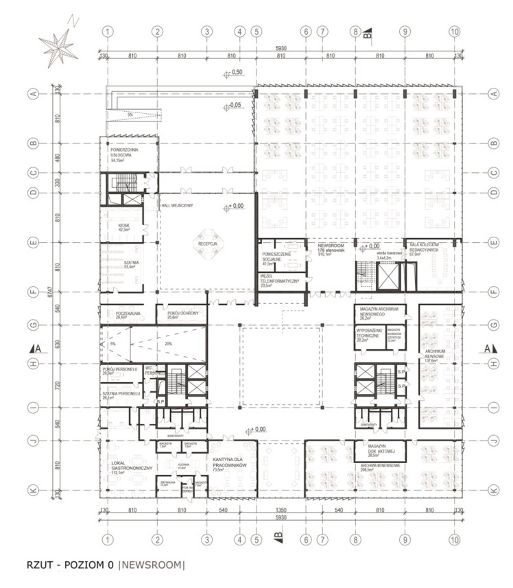
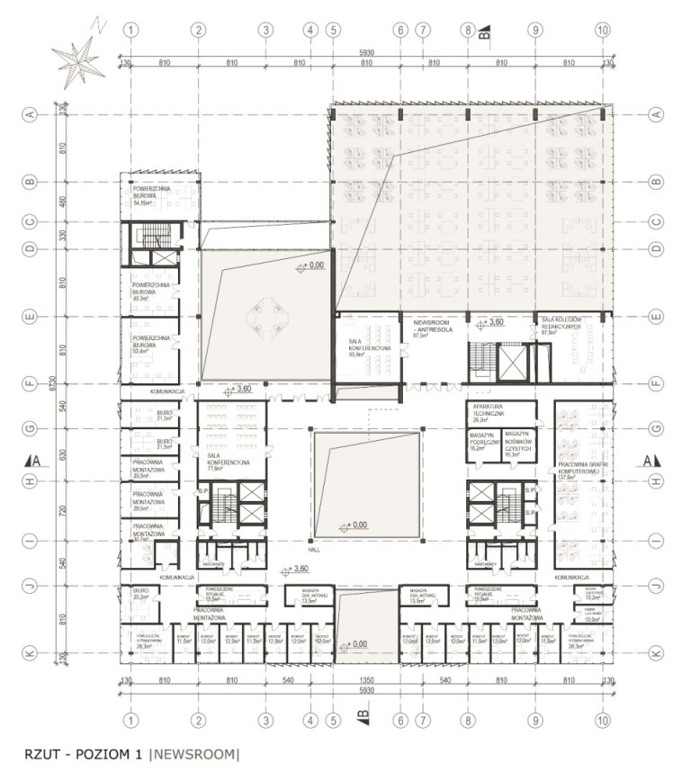
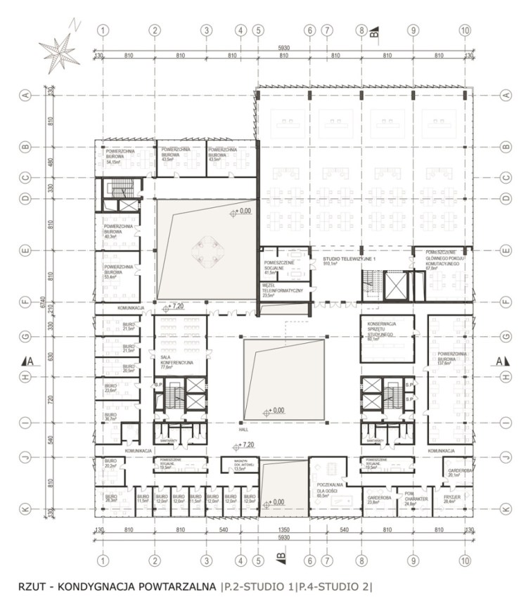
KSZTAŁTOWANIE BUDYNKU:
Budynek jako dominanta przestrzenna zamyka osie widokowe. Wewnątrz budynku znajdują się wielokondygnacyjne halle, które podkreślają ideę zamknięć/otwarć widokowych. Zaprojektowany detal architektoniczny podkreśla ważność frontowej elewacji oraz ważność wejść i kierunki osi ul. Marszałkowskiej od południowej strony.



Sytuacja

Sytuacja

Sytuacja

Sytuacja





















