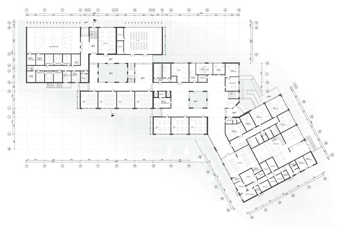
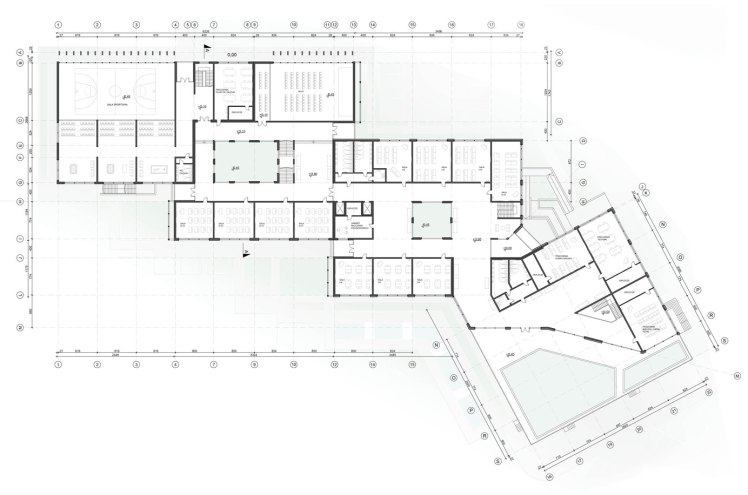
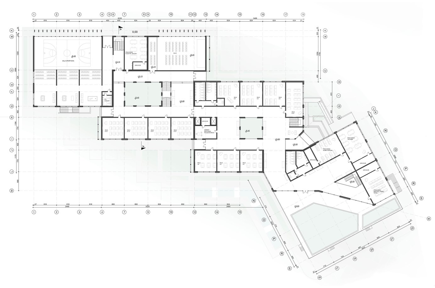
Ukształtowanie bryły budynku głównie wynikało z podłużnej działki, jej łukowej krawędzi oraz poszczególnych elementów szkoły. Proces kształtowania formy zaczyna się od prostokątnych segmentów, które należy wpasować w działkę. Szkoła Podstawowa została zaprojektowana dla klas 0 oraz I-VI, obejmująca 432 uczniów. Projekt budynku charakteryzuje się modularnością konstrukcji, aby był niski koszt budowy. Znajdziemy tu wewnętrzne dziedzińce, które dostarczają światło do wnętrza szkoły, zielony dach oraz „zielone ściany”. Zespół żywienia, biblioteka oraz zespół sportowy może funkcjonować niezależnie od reszty szkoły. Klin powstały w planie powstał jako element zapraszający do środka, jednocześnie stwarzając bezpieczny plac przed zadaszonym wejściem dla uczniów. Pomieszczenia, sale lekcyjne zostały umiejscowione tak aby miały prawidłowy dostęp do światła dziennego w odpowiednich porach dnia.
Lokalizacja: ul.Elbląska, Warszawa
Projekt: 2015r.












