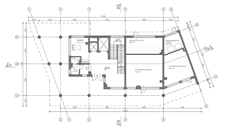
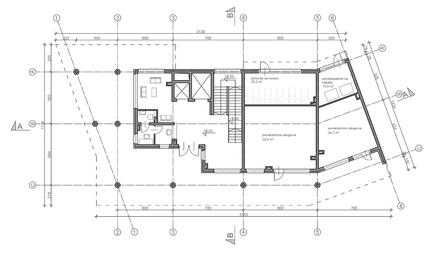
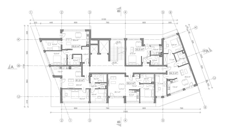
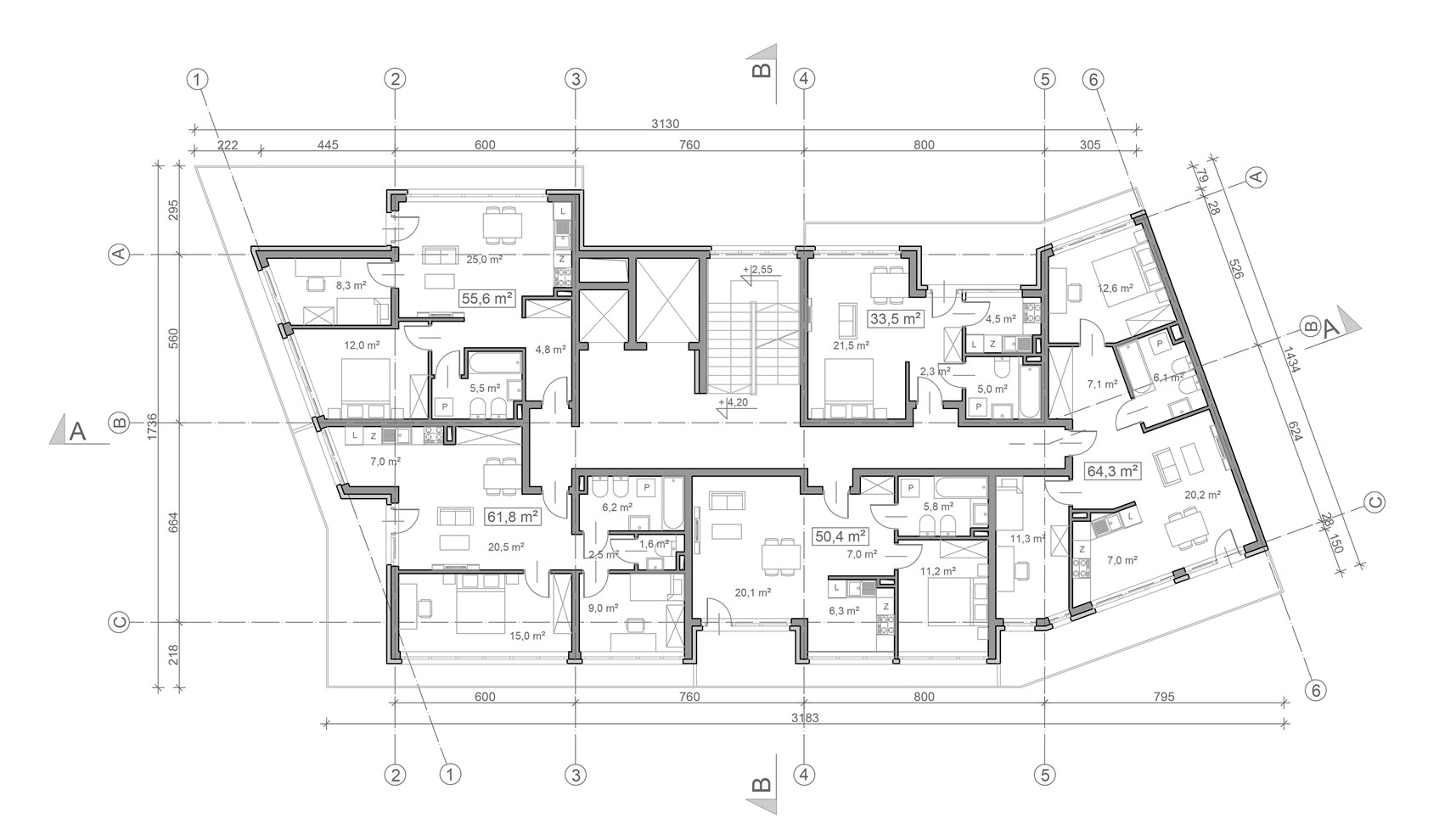
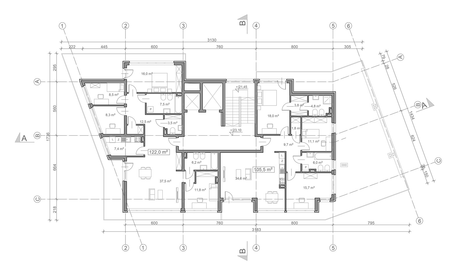
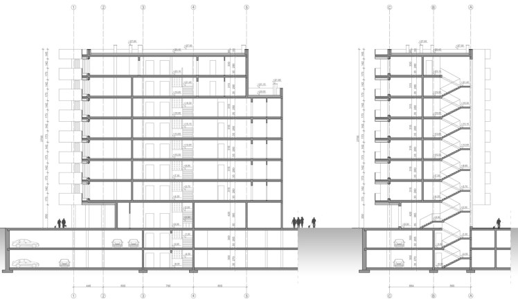
Układ urbanistyczny zespołu mieszkaniowego zaprojektowany wspólnie z grupą studentów miał na celu współgrać z istniejącym stanem zabudowy oraz być spójnym z miejscowym planem zagospodarowania terenu. Ukształtowanie formy budynków nakierowuje bądź akcentuje punktu ważne w otoczeniu. Moja część zabudowy wielorodzinnej zaprasza do wewnętrznego dziedzińca zespołu, aby wzmocnić ten efekt nadałam architekturze poziome elementy, które przez kilka kondygnacji zwężają się w kierunku dziedzińca. Pasmowość elewacji została uzyskana dzięki zastosowaniu balkonów wokół mieszkań. Specjalnie zaprojektowana część balkonowa nadaje nowoczesności i czystości architekturze.
Lokalizacja: teren dawnych browarów (D.Haberbusch i Schiele),Śródmieście, Warszawa
Projekt: 2015r.















