Projekt zagospodarowania fragmentu wsi Gocław.
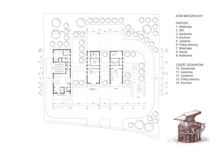
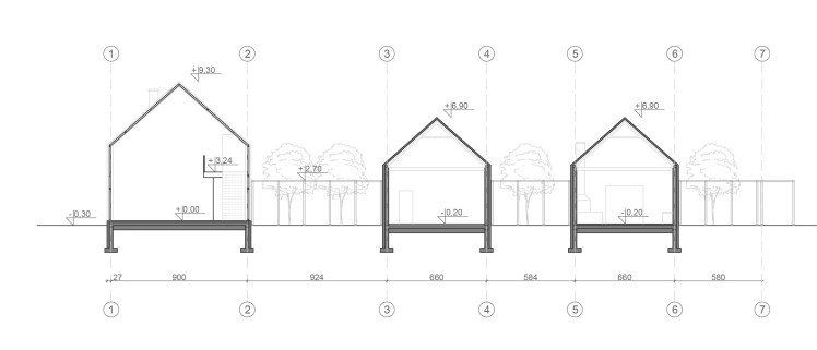
Główną ideą projektu było stworzenie prostej i funkcjonalnej przestrzeni, aby rodzina mogła się swobodnie poruszać w łączonej przestrzeni praca + dom. Dom jednorodzinny zaprojektowany został zarówno dla młodszego pokolenia jak i dziadków. Inspiracją do stworzenia detalu architektonicznego była zastana zabudowa we wsi Gocław oraz średniowieczne kuźnie.
Podstawowe wyposażenie kuźni to: palenisko, kowadło, narzędzia ręczne np.: młotki, miejsce do podkuwania koni i inne stanowiska pomocnicze. Wyroby jakie możemy napotkać u kowala artystycznego to ogrodzenia i płoty posesji, balustrady balkonowe, kraty okienne, bramy i furtki wejściowe, inne ozdoby.
W projekcie kuźni zawarłam stanowisko kowalskie, hartownicze ślusarskie. Proces technologii wytwarzania wyrobów obejmuje: przygotowanie stali (przycinanie), obróbkę termiczna (hartowanie, wyżarzanie, odpuszczanie), prace wykończeniowe (malowanie, utwardzanie powierzchni) oraz składowanie. Najlepszym paliwem dla kuźni jest węgiel drzewny, gdyż nie zawiera siarki.
Kuźnia średniowieczna składała się z centralnie umieszczonego paleniska wykonanego z ręcznie formowanej gliny szamotowej obłożonej cegłą. Ogień zasilany przez dwa miechy, które dostarczają powietrza na przemiennie zapewniając ciągły dopływ. Prace prowadzone są na dwóch kowadłach, głównym masywnym jednorożnym i mniejszym dwurogu (tzw. szpyrog). Całość dopełnia zestaw młotków, punktaków, przecinaków, nastawek, podstawek i kleszczy. Kuźnia miejsce pracy kowala, rzemieślnika reprezentującego najbardziej przez ludność wiejską cenionego zawodu. Swą pozycją w układzie społecznym wsi zawdzięczają przede wszystkim tradycji jeszcze w XIX w. Kowal oprócz tego, że był wysoko wyspecjalizowanym fachowcem w dziedzinie obróbki żelaza, bywał również dentystą, także specjalistą od schorzeń końskich.
Lokalizacja: Gocław
Projekt: 2015r.
















