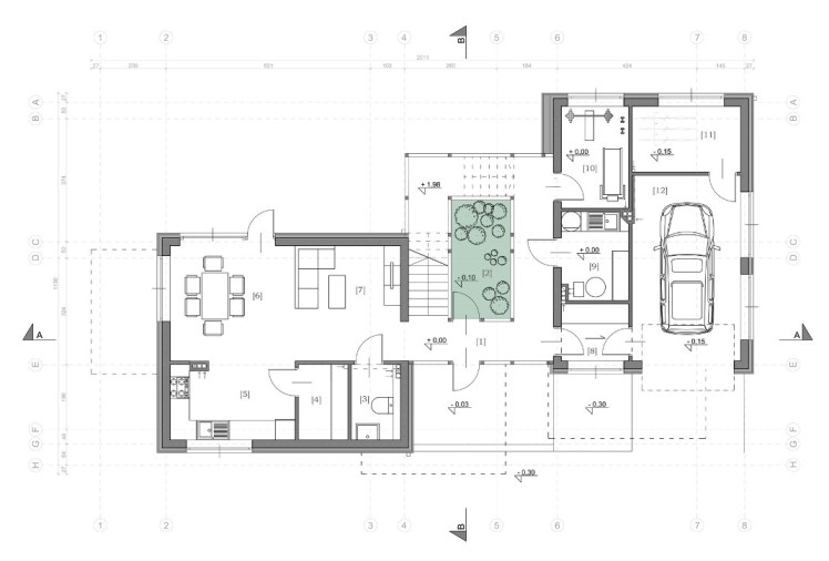
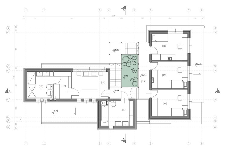
Projekt domu jednorodzinnego został oparty o koncepcję rozdzielenia stref dotyczących codziennego życia członków rodziny. Wszystkie te strefy łączy wewnętrzny ogród, który jest otoczony pnącymi się w górę schodami. Dom jest głównie skierowany na naturę, świadczy o tym zarówno ogród znajdujący się wewnątrz domu jak i część zaprojektowana na zewnątrz.
Dom przystosowany dla potrzeb rodziny 2+3. Przestrzeń dzienna/wspólna znajduje się na parterze, natomiast strefa nocna mieści się na piętrze. Kubatura budynku składa się z pięciu „pudełek”, które połączone są wewnętrznym ogrodem. Dzięki temu każda cześć mimo że jest oddzielna to budynek składa się w idealną całość. Zróżnicowanie poziomów wysokości zarówno architektury jak i otoczenie na działce urozmaica całą przestrzeń. Głównym celem projektu również było zaprojektowanie ergonomicznej oraz minimalnej powierzchni użytkowej, tak aby członkowie rodziny czuli się swobodnie we własnej przestrzeni.
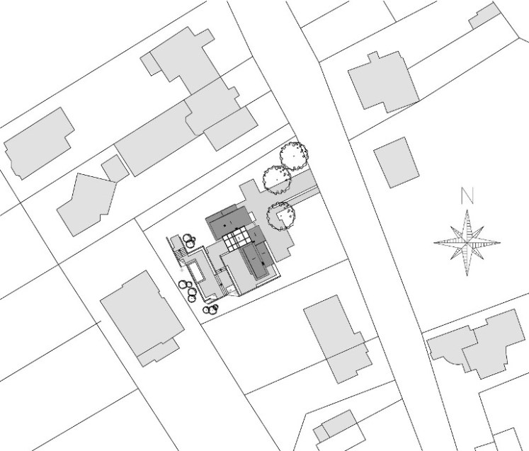
Lokalizacja: Warszawa
Projekt: 2014r.





















